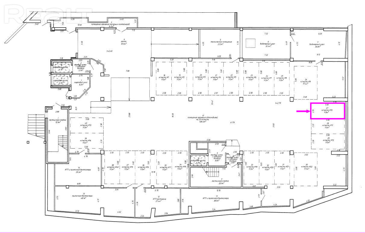
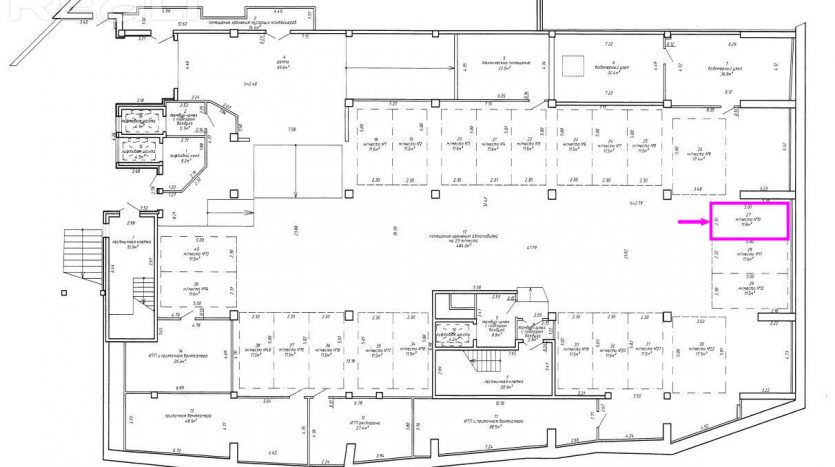
ЖК «Графит» – это уникальный комфортный и уютный дом с апартаментами в центре Минска. Деловой, культурный центр столицы в пешей доступности метро площадь Ленина, площадь Франтишка Богушевича, Немига. Удобные подъездные пути, хорошее транспортное сообщение. Апартаменты с балконом/террасой. Панорамные окна придают зданию современный вид и дают много естественного света. В отделке удачно сочетаются современные экологичные природные материалы камень и дерево. Развитая инфраструктура. Современный каркасно-блочный дом с подземным паркингом в 2 этажа на 47 машиномест. Возможна аренда (без НДС). Выгодная цена.
Бесплатная консультация по ипотеке. Поможем с продажей вашей недвижимости для приобретения понравившихся апартаментов в ЖК Графит. Поможем с разрешением на продажу вашей недвижимости, погасить приватизацию, закрыть льготный кредит. Возможен выкуп. Звоните, пишите 375447203512, 375257558605(Viber, Telegram, WhatsApp) Николай
Цена и наличие планировки актуальна на 27.11.2021г. Наличие и актуальность пожалуйста уточняйте по телефону.














